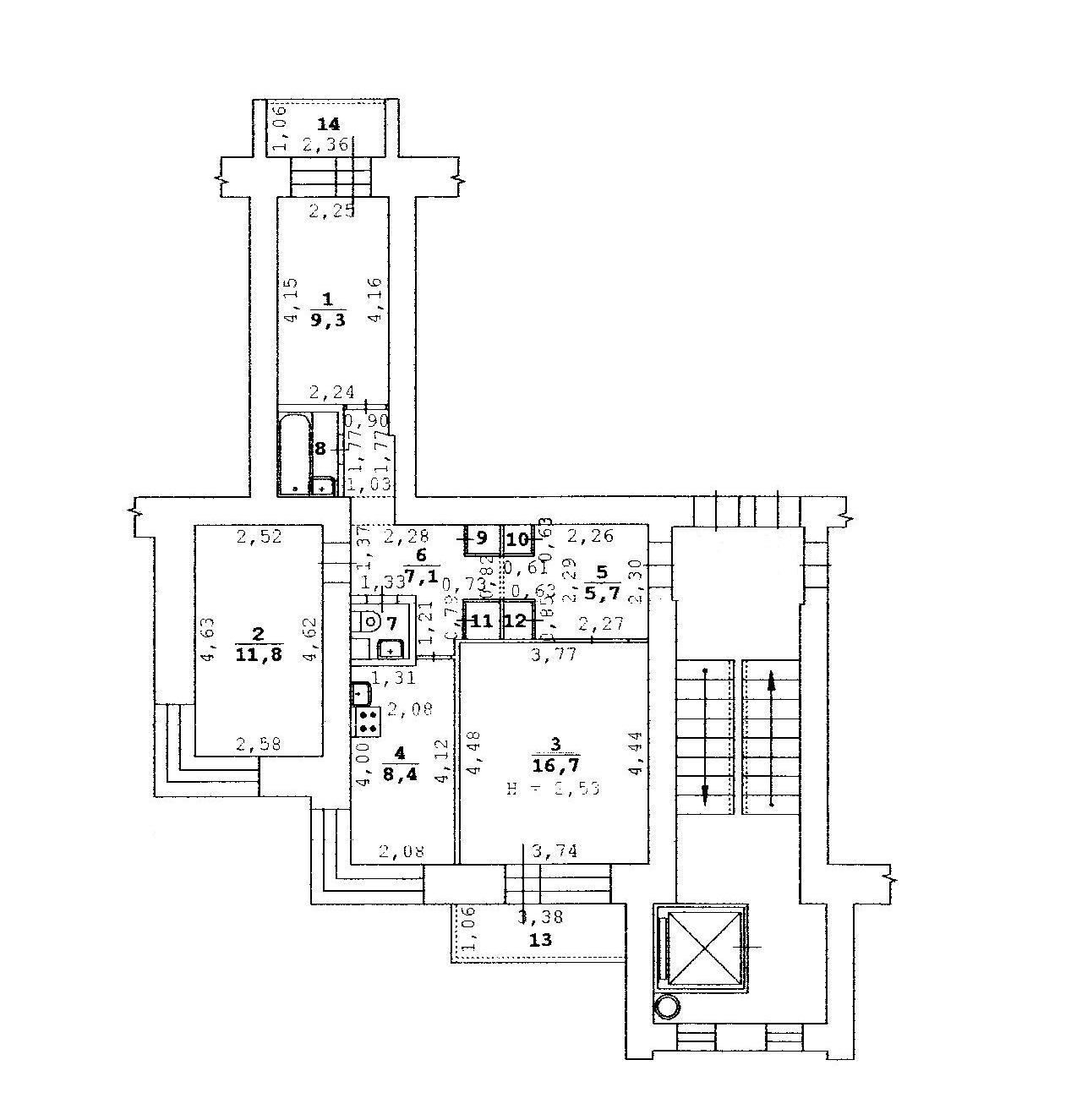
планировка