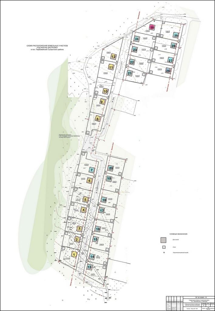
План участков